Costruzione di un armadietto
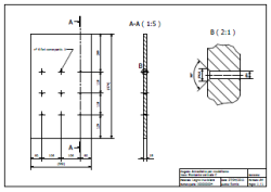
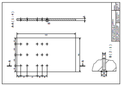
Il progetto prevede l'esecuzione di una struttura in legno truciolare da 18 mm di spessore, fissata mediante viti per legno diametro 4 mm (viti truciolari TPS completamente filettate, testa svasata piana, impronta a croce PZ).I ripiani laterali sono fissi per dare maggior solidità alla struttura, mentre quelli centrali sono solo appoggiati a dei supporti e quindi facilmente asportabili.
Consigli per il montaggio: avvitare tutti i pannelli ad eccezione di quello posteriore, mettere in squadra la struttura mediante morsetti da falegname stretti sulla diagonale e solo a questo punto fissare il pannello posteriore, che manterrà in squadra l'intera struttura.
Le viti del ripiano superiore possono essere nascoste sovrapponendovi un pezzo di linoleum di colore appropriato, mentre sulla base possono essere applicati dei feltri adesivi sull'intero perimetro.
Di seguito i disegni costruttivi:






Che dite, dopo cotanta progettazione un bel rendering me lo sarò pure meritato o no ?

Ed ora delle foto di come ho realizzato io l'armadietto, utilizzando vecchi pannelli di scarto:


